Descrizione
Casa Prada è una casa unifamiliare firmata dall’architetto ticinese Pietro Boschetti, figura di riferimento dell’architettura in Ticino e autore di diverse opere pubblicate e studiate a livello accademico.
Situata nel cuore del nucleo di Ambrì, a pochi minuti dalla nuova Gottardo Arena – casa della storica squadra di hockey HC Ambrì-Piotta – rappresenta un raro esempio di architettura contemporanea capace di dialogare con il tessuto rurale tradizionale.
Casa Prada sorge nel nucleo tradizionale di Ambrì, piccolo villaggio della Leventina sulla sponda destra del fiume Ticino, all’interno di un insieme compatto di edifici rurali e abitazioni con volumetrie simili e tetti a due falde. Progettata nel 1984, la casa sostituisce i ruderi di una vecchia cascina e interpreta con linguaggio contemporaneo il dialogo tra antico e nuovo.
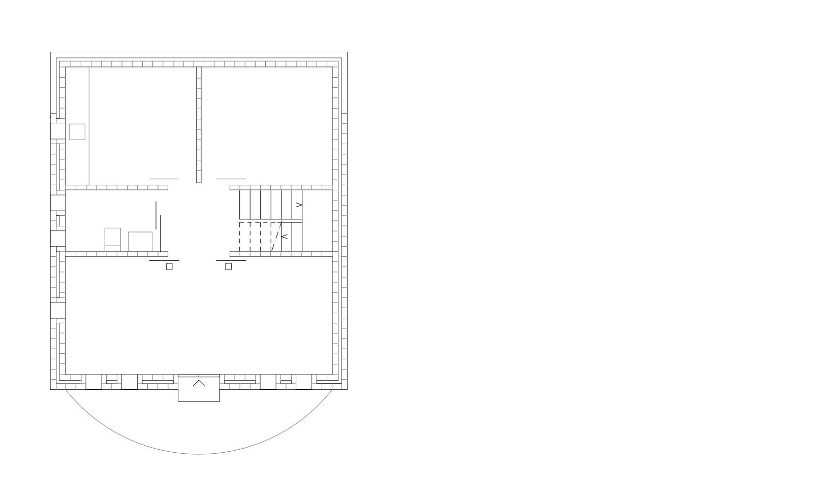
L’edificio si sviluppa su tre piani fuori terra e si inserisce con grande coerenza formale nel contesto: la muratura in mattoni BKS a vista, utilizzata sia all’interno sia all’esterno, richiama per colore e matericità le facciate delle case storiche circostanti, mentre le dimensioni esterne riprendono i moduli degli edifici esistenti. La struttura è completata da solette, soffitti e serramenti in legno, con un linguaggio architettonico essenziale e coerente.
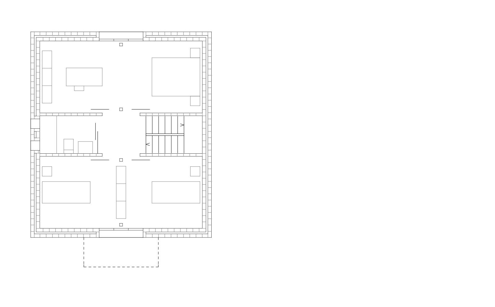
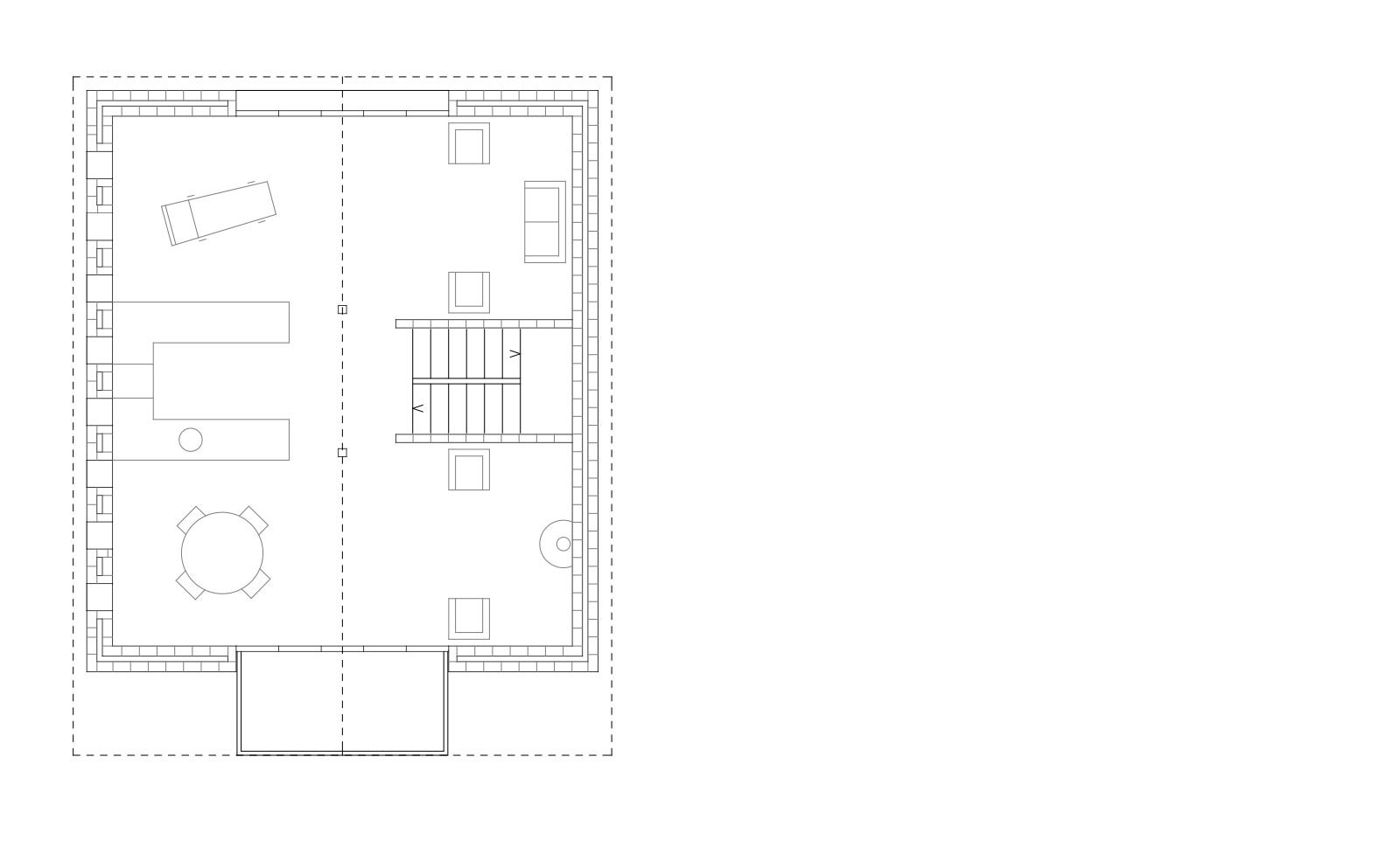
Al pianterreno troviamo l’ingresso con atrio, concepito come “tampone energetico” tra interno ed esterno, che introduce agli spazi superiori. Una scala collega il primo piano, dedicato alla zona notte, al terzo piano, dove gli ambienti sono organizzati per sfruttare l’ultimo raggio di sole: ampio soggiorno, zona pranzo e cucina si sviluppano in uno spazio generoso e luminoso.
La casa dispone di 5 locali, due servizi, circa 220 m² di superficie abitabile lorda e un volume SIA di 650 m³ su un fondo compatto (part. 611, Comune di Quinto, EGRID CH528421020711, superficie ca. 94 m²).
Casa Prada è attualmente utilizzata anche come residenza secondaria, senza restrizioni d’uso, ed è proposta ammobiliata, ideale quindi per chi desidera una soluzione pronta all’uso.
La microlocalizzazione è leggermente sopra la media: la casa si trova a pochi passi dalla fermata dei trasporti pubblici e dai principali servizi/negozi, in un contesto di nucleo raccolto e autentico.
Un ulteriore elemento distintivo è la vicinanza alla nuova Gottardo Arena, moderna struttura che ospita le partite casalinghe dell’HC Ambrì-Piotta, storica e amatissima squadra di hockey della valle: questo rende l’immobile particolarmente interessante per appassionati di sport, investitori e acquirenti alla ricerca di una seconda casa con forte identità territoriale e culturale.
Il riscaldamento è elettrico, con standard e stato che riflettono la costruzione degli anni ’80 (standard leggermente sotto la media, stato da aggiornare), offrendo così anche un potenziale di valorizzazione attraverso interventi mirati di miglioramento energetico e di rinnovamento delle finiture.
Situata nel cuore del nucleo di Ambrì, a pochi minuti dalla nuova Gottardo Arena – casa della storica squadra di hockey HC Ambrì-Piotta – rappresenta un raro esempio di architettura contemporanea capace di dialogare con il tessuto rurale tradizionale.
Casa Prada sorge nel nucleo tradizionale di Ambrì, piccolo villaggio della Leventina sulla sponda destra del fiume Ticino, all’interno di un insieme compatto di edifici rurali e abitazioni con volumetrie simili e tetti a due falde. Progettata nel 1984, la casa sostituisce i ruderi di una vecchia cascina e interpreta con linguaggio contemporaneo il dialogo tra antico e nuovo.
L’edificio si sviluppa su tre piani fuori terra e si inserisce con grande coerenza formale nel contesto: la muratura in mattoni BKS a vista, utilizzata sia all’interno sia all’esterno, richiama per colore e matericità le facciate delle case storiche circostanti, mentre le dimensioni esterne riprendono i moduli degli edifici esistenti. La struttura è completata da solette, soffitti e serramenti in legno, con un linguaggio architettonico essenziale e coerente.
Al pianterreno troviamo l’ingresso con atrio, concepito come “tampone energetico” tra interno ed esterno, che introduce agli spazi superiori. Una scala collega il primo piano, dedicato alla zona notte, al terzo piano, dove gli ambienti sono organizzati per sfruttare l’ultimo raggio di sole: ampio soggiorno, zona pranzo e cucina si sviluppano in uno spazio generoso e luminoso.
La casa dispone di 5 locali, due servizi, circa 220 m² di superficie abitabile lorda e un volume SIA di 650 m³ su un fondo compatto (part. 611, Comune di Quinto, EGRID CH528421020711, superficie ca. 94 m²).
Casa Prada è attualmente utilizzata anche come residenza secondaria, senza restrizioni d’uso, ed è proposta ammobiliata, ideale quindi per chi desidera una soluzione pronta all’uso.
La microlocalizzazione è leggermente sopra la media: la casa si trova a pochi passi dalla fermata dei trasporti pubblici e dai principali servizi/negozi, in un contesto di nucleo raccolto e autentico.
Un ulteriore elemento distintivo è la vicinanza alla nuova Gottardo Arena, moderna struttura che ospita le partite casalinghe dell’HC Ambrì-Piotta, storica e amatissima squadra di hockey della valle: questo rende l’immobile particolarmente interessante per appassionati di sport, investitori e acquirenti alla ricerca di una seconda casa con forte identità territoriale e culturale.
Il riscaldamento è elettrico, con standard e stato che riflettono la costruzione degli anni ’80 (standard leggermente sotto la media, stato da aggiornare), offrendo così anche un potenziale di valorizzazione attraverso interventi mirati di miglioramento energetico e di rinnovamento delle finiture.
Comodità
Dintorni
- Villaggio
- Montagne
- Negozi
- Posta
- Ristorante(i)
- Stazione
- Fermata Bus
- Entrata/uscita autostrada
- Scuola materna
- Scuola primaria
- Scuola secondaria
- Pista di ghiaccio
Esterno
- Balcone/i
- Terrazza/e
- Calmo/tranquillo
- Parcheggio pubblico
Interno
- Parcheggio pubblico
- Cucina aperta
- WC ospiti
- WC separati
- Parzialmente ammobiliato
- Stufa
- Doppi vetri
- Luminoso
- Travi a vista
- Costruzione solida e tradizionale
Dotazione
- Cucina attrezzata
- Cucina arredata
- Piano cottura
- Vetroceramica
- Forno
- Frigorifero
- Congelatore
- Lavastoviglie
- Lavatrice
- Asciugatrice
- Vasca da bagno
- Doccia
- Telefono
- Fibra ottica
- Connessione internet
Vista
- Montagne
Stile
- Rustico













